郑州楼盘【保利缦城和颂】售楼处电话_郑州保利缦城和颂_买房咨询_户型_地址_楼盘详情

搜狐焦点洛阳站 2025-12-09 13:22:00
用手机看
扫描到手机,新闻随时看

扫一扫,用手机看文章
更加方便分享给朋友

郑州【保利·缦城和颂】售楼处电话:0371-63385670(中介勿扰)楼盘最新价格,户型图,地址,电话,样板房,周边配套,项目介绍

郑州【保利·缦城和颂】售楼处电话:0371-63385670(中介勿扰)

楼盘最新价格,户型图,地址,电话,样板房,周边配套,项目介绍

温馨提示:绝不收取任何费用,请提前1小时预约看房,以免带来不好的看房体验

保利的8平方公里——山河之城!重仓510亿,全国保利一号工程金水桥头堡,北龙湖对称位

保利·缦城和颂【项目基础信息】

总占地:约230亩

总建面:约59万㎡

容积率:2.89

绿化率:35%

产品类型:19-24层小高层、7-8层洋房

建筑面积:约98-168㎡

物业公司:保利物业

交付标准:装修

交付时间:2025年12月底

【保利·缦城和颂-约230亩公园里的家】

【"缦"立都会】金水北正席,花园路中轴,贾鲁河畔,繁华与繁花兼得的生活场域。

【"缦"享360°时光】依山傍河,建面约73000㎡一山一河四大主题公园均已实景呈现体育公园、山丘乐园、儿童公园、滨河公园,360°缦享公园休闲时光酒店级全龄段泛会所,重塑城市慢生活场景。

【"缦"筑美学】大盘规划,公园气质,先锋美学立面。270°环幕视野,尽揽繁华与山河。

【"缦"立都会】繁华与繁花兼得的生活场域

1.择址金水北核心区,地处花园路中轴;

2.一步北龙湖,对望中原科技城和金融岛;

3.地铁2号线举步即达,立体交通畅达全城;

4.贾鲁河河畔,繁华与繁花兼得的多元生活。

【"缦"享教育】老牌名校,呵护成才之路

首批省重点中学郑州八中新校区郑州排名TOP4小学纬五路一小(中州校区)已确定2023年已招生优质教育在旁,享受精英教育让孩子健康快乐成长

【"缦"享时光】一河四公园+3500㎡酒店级全龄段泛会所的高阶私域生活

1.依山傍河:一河四公园滨河公园——约1公里贾鲁河景观廊道

儿童公园——约1500㎡"儿童公园"

山体公园——约110亩"缦林绿岛"

体育公园——约8000㎡"缦跃运动"

约3500㎡酒店式全龄泛会所。

【"缦"筑美学】:时代审美的都会样板

1.先锋美学立面:现代极简主义,大尺度落地窗,公建化立面。

2.利用一轴三境的景观结构打造出公园住区。

一轴:约1公里潮流商业轴

三境:山谷 · 隐山之境

三境:林间 · 森藏之境

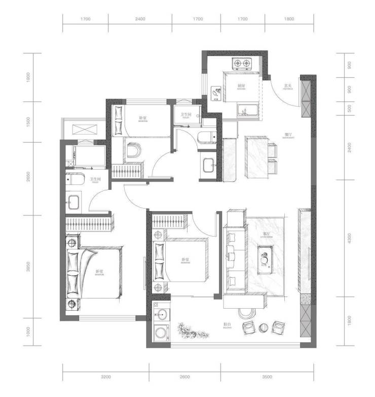
【保利·缦城和颂】户型鉴赏

揽山河入怀,造理想奢宅洋房,

建筑面积约168㎡,四室两厅三卫

小高层,建筑面积约148㎡,四室两厅两卫

小高层,建筑面积约125㎡,三室两厅两卫

小高层,建筑面积约98㎡,三室两厅两卫

温馨提示:1.以上区域规划图相关配图仅为示意,后期因政府规划或政策调整可能会有所改动,开发商保留对图片的修改及调整的权利。2.以上效果图仅供参考,至宣传资料宣发时本项目仍处于优化设计中,小区外的配套设施为规划配套,敬请留意最新资料,本项目涉及的各方权利义务最终以各方签订的协议及政府批文为准。3.以上户型图所标尺寸仅供参考,交房尺寸以最终签署的商品房买卖合同的约定为准;相同户型单位因楼栋、楼层、单元等差别,局部结构、面积等可能不同。4.本资料所发布内容为2024年4月的信息,敬请留意最新资料。

————————————————————————————————

郑州【保利·缦城和颂】售楼处电话:0371-63385670(中介勿扰)

楼盘最新价格,户型图,地址,电话,样板房,周边配套,项目介绍

温馨提示:绝不收取任何费用,请提前1小时预约看房,以免带来不好的看房体验

声明:本文由入驻焦点开放平台的作者撰写,除焦点官方账号外,观点仅代表作者本人,不代表焦点立场。